Social distancing resort

Concept proposal for investing in Social distancing resort

Welcome to invest in Hossa

Hossa is one of Finland’s most interesting destinations for nature and adventure tourism. The Hossa National Park has made the area known both domestically and internationally. In 2024, the area was visited by 75,500 tourists.

Social distancing resort 

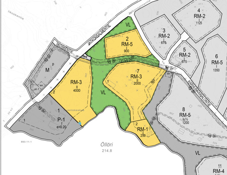
There are 3 plots available right next to the Hossa National Park Visitor Centre with a total of 8,000 square meters of floor space available for construction. Here it is possible to invest in accommodation, restaurant and other commercial use. Let’s build an opportunity for social distancing in a safe environment.

The surrounding nature, wildlife and Hossa National Park have already created a favourable tourism business environment for local services providers. The service providers have a joint marketing network. They have also committed to follow the guidelines of sustainable tourism. There is already versatile range of accommodation available, but also a growing need for new capacity and unique concepts.

Accommodation investments in Hossa

Hossa tourist services include Hossa Visitor Centre, camping and caravan area with summer shop, hotel Hossa Holiday Center, restaurants, accommodation and program services, reindeer farm visits as well as cottage and holiday apartments.

Locations for future accommodation investments in Hossa are:

  1. Visitor Centre area
  2. Social distancing resort
  3. Hossa Wilderness Base Camp – Seipiniemi
  4. Hotel and service building – Hossanniemi

Interested? Get in touch!

Jonne Maaninka

Hannu Juntunen